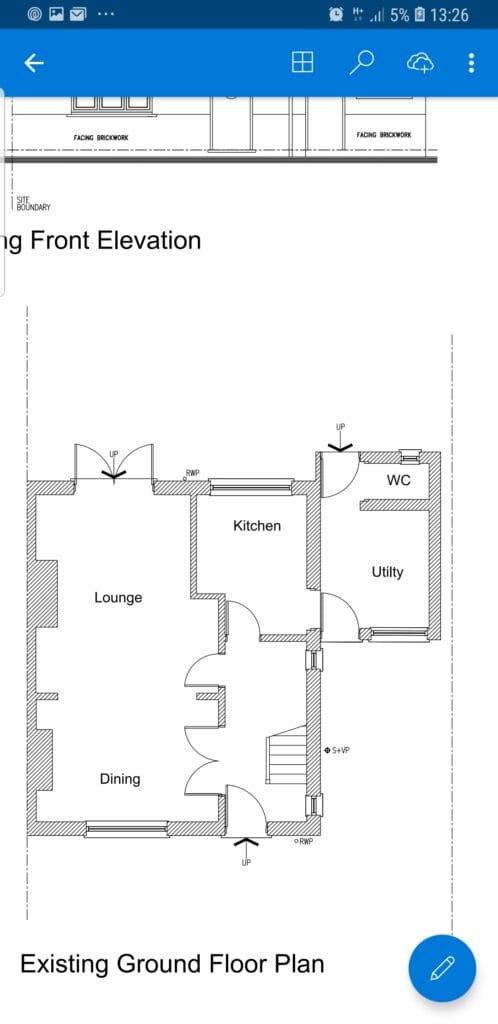
Pauline’s Kitchen & Utility Extension

More Projects

Project in Lymm

Bathrooms, Brickwork & Extensions, Joinery, Kitchens, Other, Plastering

Debbie’s Bathroom

Bathrooms

Steve’s Kitchen Garage Conversion

Brickwork & Extensions, Garage Conversions, Other

Chris’s Open Plan Kitchen & Living Room

Brickwork & Extensions, Joinery, Kitchens, Other, Plastering
Steve’s Kitchen Garage Conversion
Project in Lymm